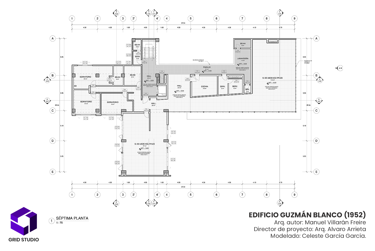
Proyecto: Edificio Guzmán Blanco (1952)
Arq. Autor: Manuel Villarán Freire.
Premios: Premio Chavín 1952 (actual Hexágono de Oro)
Director: Arq. Alvaro Arrieta Palomino. CAP 19800
Docente de curso BIM Pro: Jesús Céspedes Alarcón.
Modelado: Celeste García García.
Arq. Autor: Manuel Villarán Freire.
Premios: Premio Chavín 1952 (actual Hexágono de Oro)
Director: Arq. Alvaro Arrieta Palomino. CAP 19800
Docente de curso BIM Pro: Jesús Céspedes Alarcón.
Modelado: Celeste García García.
“Se trata de un edificio de viviendas multifamiliares, de siete pisos, de estructuras de concreto armado. En este edificio, así como en mucho otros construidos en su época, utilizan elementos ligeros como parapetos de sus pasarelas. Es característico en las obras del Arq. Villarán Freire el uso de los pilotes en la primera planta, buscando la transparencia; notándose claramente la influencia de Le Corbusier.
Recibe también la influencia de la arquitectura brasileña, por el uso de los parasoles adecuándola al medio. Es importante señalar, que fue un buen ejemplo que mostraba la preocupación del arquitecto por lograr una mejor orientación y asoleamiento, haciendo para esto una diferente y novedosa distribución de la edificación dentro del terreno.”
Recibe también la influencia de la arquitectura brasileña, por el uso de los parasoles adecuándola al medio. Es importante señalar, que fue un buen ejemplo que mostraba la preocupación del arquitecto por lograr una mejor orientación y asoleamiento, haciendo para esto una diferente y novedosa distribución de la edificación dentro del terreno.”
Fuente: Beltrán L., Higa M. y López G. (1980). La arquitectura en el Perú desde 1950. Lima: Universidad Nacional de Ingeniería.