𝗣𝗥𝗢𝗖𝗘𝗦𝗢 𝗗𝗘 𝗖𝗘𝗥𝗧𝗜𝗙𝗜𝗖𝗔𝗖𝗜𝗢́𝗡 𝗕𝗜𝗠 𝗣𝗥𝗢 𝗢𝗡𝗟𝗜𝗡𝗘
Proyecto: Edificio de Oficinas en Cañete
Asesoría BIM: CEO Jesús Céspedes Alarcón
Modelado BIM: Enrique Gomez Argote.
Postproducción: Equipo de Grid Studio- Richard Bellido C.
Softwares: Revit 2021 & Photoshop.
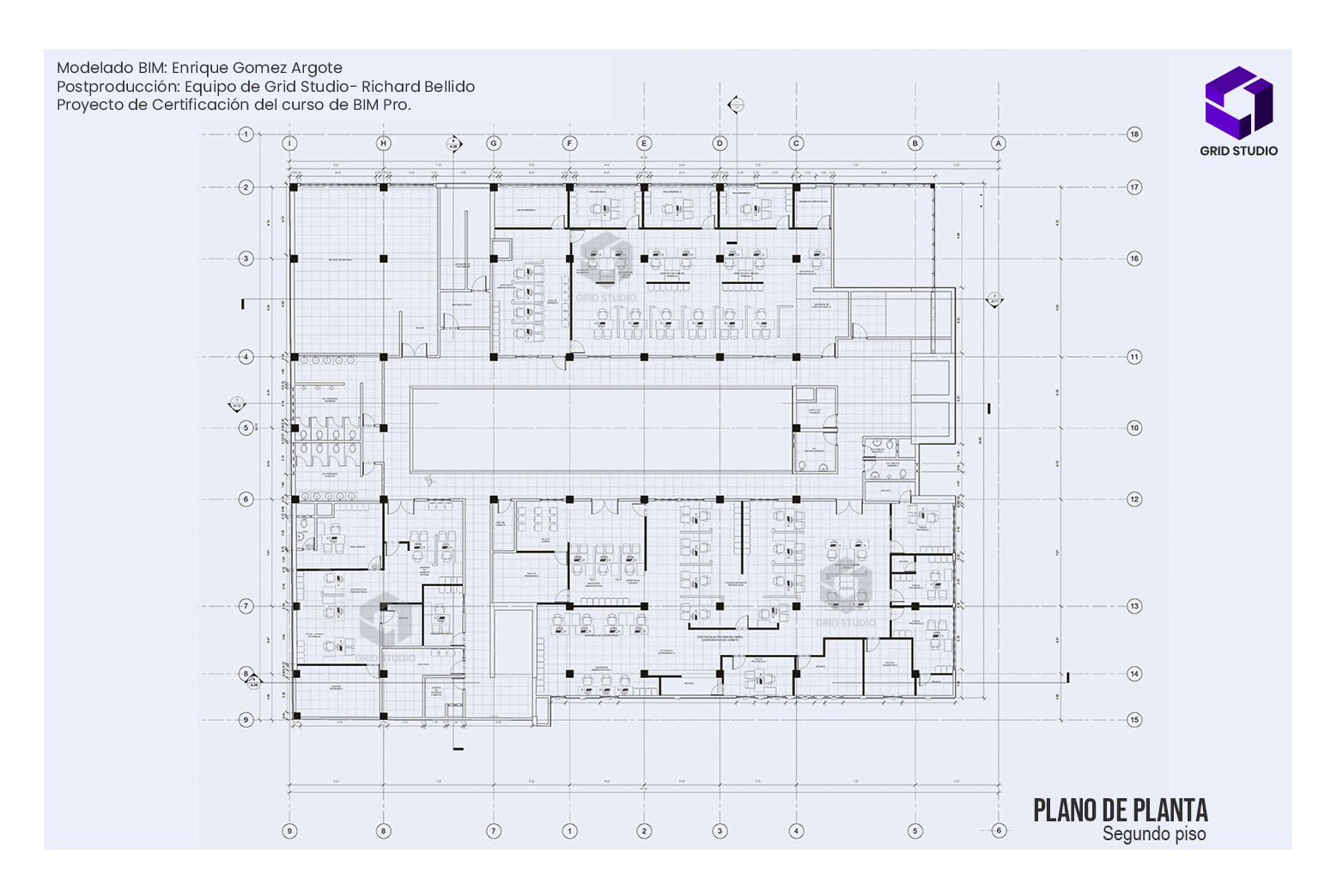
El edificio de oficinas de 4 pisos establece un diseño de oficinas uso institucional en la provincia de Cañete. Este proyecto estuvo pensado para acoger e invitar a las personas, trabajadores al tener un ingreso en la esquina más transcurrida del lugar. Se propuso distintos volúmenes que definen los ambientes interiores del edificio, con un patio central que funciona como núcleo de todas las oficinas y espacio común de todo el proyecto.
Fue planificado con un sistema de pórticos de concreto armado, tabiquería de ladrillo y drywall. Además de muros cortinas de cristalería traslúcida incolora templado de 8 a 12mm.
Proyecto: Edificio de Oficinas en Cañete
Asesoría BIM: CEO Jesús Céspedes Alarcón
Modelado BIM: Enrique Gomez Argote.
Postproducción: Equipo de Grid Studio- Richard Bellido C.
Softwares: Revit 2021 & Photoshop.
El edificio de oficinas de 4 pisos establece un diseño de oficinas uso institucional en la provincia de Cañete. Este proyecto estuvo pensado para acoger e invitar a las personas, trabajadores al tener un ingreso en la esquina más transcurrida del lugar. Se propuso distintos volúmenes que definen los ambientes interiores del edificio, con un patio central que funciona como núcleo de todas las oficinas y espacio común de todo el proyecto.
Fue planificado con un sistema de pórticos de concreto armado, tabiquería de ladrillo y drywall. Además de muros cortinas de cristalería traslúcida incolora templado de 8 a 12mm.