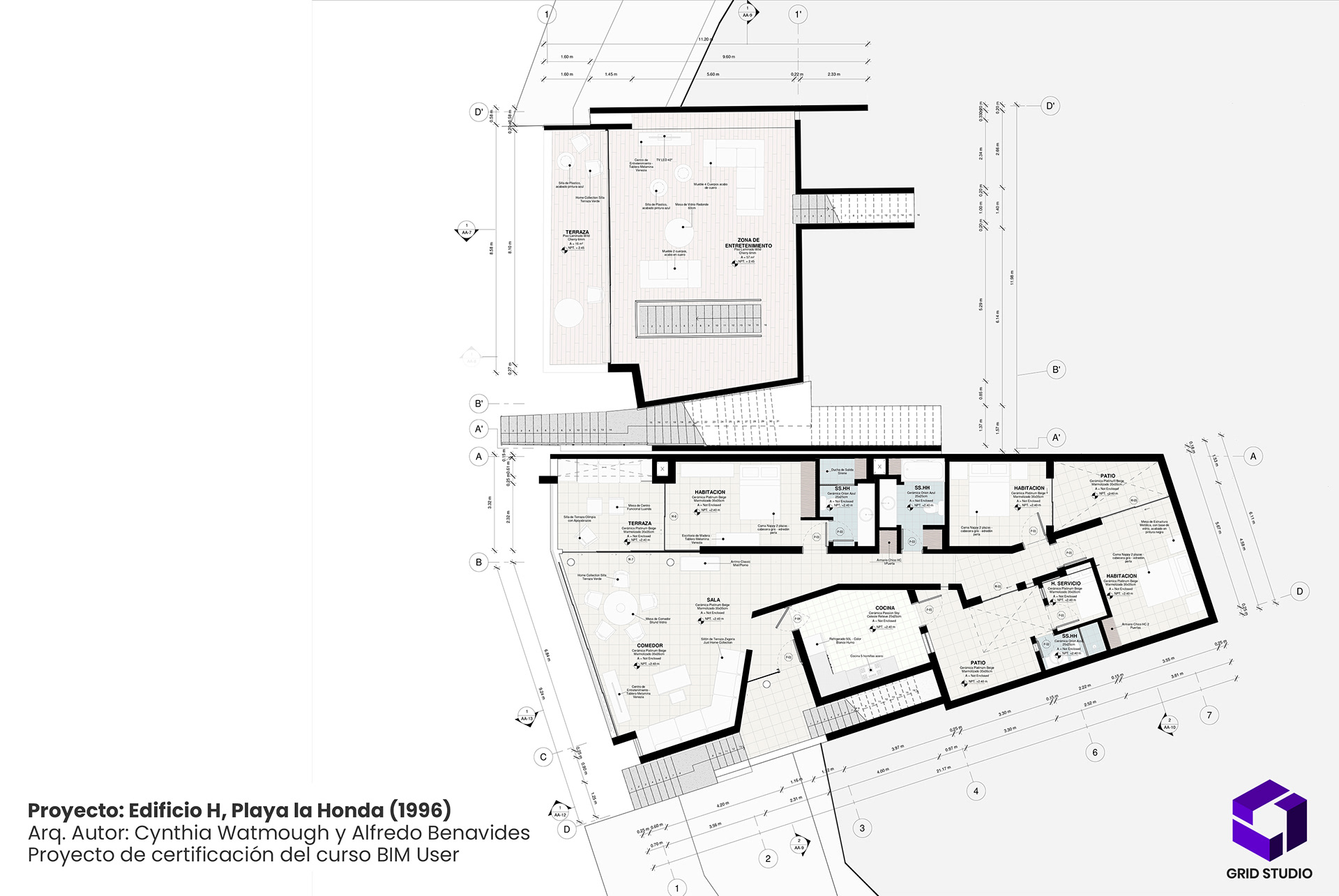
Proyecto: Edificio H, Playa la Honda (1996)
Arq. Autor: Cynthia Watmough y Alfredo Benavides
Premios: Hexágono de Oro (2000)
Director de Investigación: Arq. Alvaro Arrieta Palomino. CAP 19800
Coodinador BIM: Arq. Rainer Murrieta Huaranca
Docente de BIM User: CEO Jesús Céspedes
Modeladores BIM: Jesús Mendoza Fernández y Carlos Núñez Gómez
Software: Revit 2021
“El edificio multifamiliar en playa La Honda (1996) recibe en el año 2000 el Hexágono de Oro, premio máximo de la IX Bienal de Arquitectura de Perú. Se trata de un edificio de vivienda temporal construida en cuatro niveles escalonados y un sótano, con cuatro pequeños departamentos que se articulan en torno a un patio central trapezoidal y a un eje de circulación continuo. Además de aprovechar su particular ubicación -una hermosa playa al sur de Lima, en un lote profundo de 12.50 m de frente, 8.50 m de fondo, con una entalladura de 5 m en su parte central- el ordenamiento espacial está controlado por la topografía del terreno y por la interacción de múltiples perspectivas. Watmough señala como motivo de orgullo, que esta obra, junto a muchas otras casas de playa de esa época, se mantiene vigente debido al carácter contemporáneo del proyecto.”
Fuente: https://undiaunaarquitecta.wordpress.com/2015/11/11/cynthia-watmough-1961/
Arq. Autor: Cynthia Watmough y Alfredo Benavides
Premios: Hexágono de Oro (2000)
Director de Investigación: Arq. Alvaro Arrieta Palomino. CAP 19800
Coodinador BIM: Arq. Rainer Murrieta Huaranca
Docente de BIM User: CEO Jesús Céspedes
Modeladores BIM: Jesús Mendoza Fernández y Carlos Núñez Gómez
Software: Revit 2021
“El edificio multifamiliar en playa La Honda (1996) recibe en el año 2000 el Hexágono de Oro, premio máximo de la IX Bienal de Arquitectura de Perú. Se trata de un edificio de vivienda temporal construida en cuatro niveles escalonados y un sótano, con cuatro pequeños departamentos que se articulan en torno a un patio central trapezoidal y a un eje de circulación continuo. Además de aprovechar su particular ubicación -una hermosa playa al sur de Lima, en un lote profundo de 12.50 m de frente, 8.50 m de fondo, con una entalladura de 5 m en su parte central- el ordenamiento espacial está controlado por la topografía del terreno y por la interacción de múltiples perspectivas. Watmough señala como motivo de orgullo, que esta obra, junto a muchas otras casas de playa de esa época, se mantiene vigente debido al carácter contemporáneo del proyecto.”
Fuente: https://undiaunaarquitecta.wordpress.com/2015/11/11/cynthia-watmough-1961/