• INICIO
  • DIGITALIZACIÓN BIM DE PROYECTOS EMBLEMÁTICOS
  • REVIT DESDE 0
  • BIM USER
  • BIM PRO
  • BIM MEP USER
  • BIM MEP PRO
  • COORDINACIÓN BIM
  • BIM MANAGEMENT
  • PLANIMETRÍA BIM
  • MODELADO Y DISEÑO DE FAMILIAS PARAMÉTRICAS
  • GESTIÓN BIM CON POWER BI
  • BIM APLICADO AL DISEÑO INTERIOR
  • AUTOCAD
  • SKETCHUP DESDE 0
  • SKETCHUP USER
  • SKETCHUP PRO
  • DISEÑO DE INTERIORES
  • MODELADO DE DISEÑO DE INTERIORES AVANZADO
  • RHINOCEROS + GRASSHOPPER
  • PHOTOSHOP ARQUITECTÓNICO + DIAGRAMACIÓN DE PANELES
  • D5 RENDER + Capcut
  • LUMION
  • ESTRUCTURAS BIM
  • METRADOS BIM
  • TALLER DE DISEÑO DE MUEBLERÍA
  • TEMARIOS
  • PROYECTOS DE TESIS
  • PROYECTOS ARQUITECTÓNICOS
CONTÁCTANOS
jesus cespedes
  • INICIO
  • DIGITALIZACIÓN BIM DE PROYECTOS EMBLEMÁTICOS
  • REVIT DESDE 0
  • BIM USER
  • BIM PRO
  • BIM MEP USER
  • BIM MEP PRO
  • COORDINACIÓN BIM
  • BIM MANAGEMENT
  • PLANIMETRÍA BIM
  • MODELADO Y DISEÑO DE FAMILIAS PARAMÉTRICAS
  • GESTIÓN BIM CON POWER BI
  • BIM APLICADO AL DISEÑO INTERIOR
  • AUTOCAD
  • SKETCHUP DESDE 0
  • SKETCHUP USER
  • SKETCHUP PRO
  • DISEÑO DE INTERIORES
  • MODELADO DE DISEÑO DE INTERIORES AVANZADO
  • RHINOCEROS + GRASSHOPPER
  • PHOTOSHOP ARQUITECTÓNICO + DIAGRAMACIÓN DE PANELES
  • D5 RENDER + Capcut
  • LUMION
  • ESTRUCTURAS BIM
  • METRADOS BIM
  • TALLER DE DISEÑO DE MUEBLERÍA
  • TEMARIOS
  • PROYECTOS DE TESIS
  • PROYECTOS ARQUITECTÓNICOS
CONTÁCTANOS

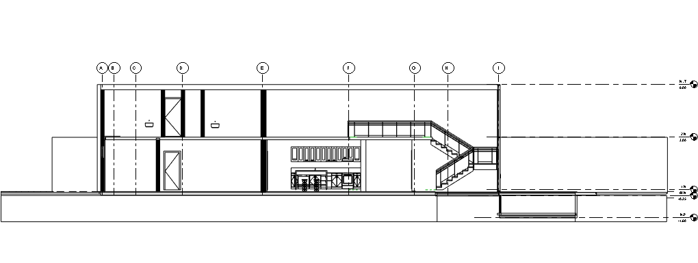
CASA PLANICIE

Arquitecto: Juan Carlos Doblado
Año: 2012
Área: 259.0 m2
Ubicación: La Planicie, Lima 15026, Perú.
PLANTA - GENERAL
PLANTA - SEMI-SOTANO
CORTE - TRANSVERSAL
CORTE - LONGITUDINAL
ISOMETRIA
RENDER - INTERIOR DÍA 
RENDER - EXTERIOR DÍA 
RENDER - INTERIOR NOCHE 

You may also like

2021
CASA EN MACHALI
2021
DOCENTE: ARQ. ADRIÁN VILLEGAS
2022
CERTIFICADO: Narumi Tsukayama
2022
CERTIFICADO: Ariana Chalán
2022
CONSTANCIA: Diana Yparraguirre
2021
VIVIENDA UNIFAMILIAR
2022
CONSTANCIA: Leandro Silva
2020
Temario REVIT DESDE 0
2021
VIVIENDA UNIFAMILIAR
2020
CASA BIANCHI
↑Back to Top
Powered by Adobe Portfolio